rivitalo | Seppäläntie 22 A 6 , Loviisa

Suositulla asuinalueella hyvin hoidetussa yhtiössä hyvin hoidettu päätyhuoneisto. Kauppa, urheilu, päiväkoti kaikki lähellä. Autopaikka, valokuitu ym. Hp 115.000€.

Kohdenumero1403727
Talotyyppirivitalo
SijaintiSeppäläntie 22 A 6 , 07900 Loviisa
KaupunginosaRauhala
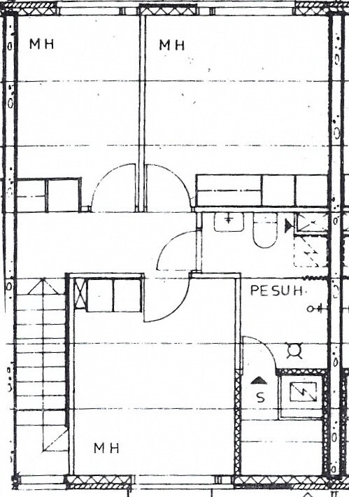
Huoneluku4h+k+s
Asuinpinta-ala91.5m²
Kokonaispinta-ala91.5m²
Pinta-alan tarkennePinta-alatieto ohjeellinen. Ei tarkistusmitattu.
Kerros2/2
Rakennusvuosi1978
Käyttöönottovuosi1978
Lämmityskaukolämpö
EnergiatehokkuusluokkaC2018
Katon tyyppiHarjakatto
Katon materiaaliPeltikate
Huoneiston kuntohyvä
Vapautuminensopimuksen mukaan

Kylpyhuonepesukoneliitäntä, wc-istuin, suihku
Nettiyhteysvalokuitu
Taloyhtiössätalopesula, urheiluvälinevarasto
Muu varustusparveke, oma sauna, kaapeli-tv

Keittiö seinätkaakeli, maalattu
Keittiö lattialaminaatti
Keittiö tasotpuu, laminaatti
Kylpyhuone lattialaatta
Kylpyhuone seinätkaakeli
Makuuhuone seinätmaalattu, tapetti
Makuuhuone lattiaparketti, laminaatti
Olohuone seinätmaalattu
Olohuone lattiaparketti
Rakennusmateriaalipuu, tiili

Myyntihinta102 577 €
Velaton hinta115 000 €
Velkaosuus12423.13

Muut palvelutKauppa 100 m

Tontin pinta-ala7360 m²
Tontin omistusoma
KaavoitusAsemakaava

Hansson Kenneth
Kiinteistönvälittäjä LKV
kenneth@iukvoy.fi